10+ Clayton Homes Ultra Pro Big Boy Pictures

The listing agent for these homes has added a coming soon note to alert buyers in advance.

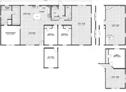
10+ Clayton Homes Ultra Pro Big Boy Pictures. Prefab homes for sale from manufactured home, modular home, and mobile home manufacturers and dealers across america. It is a large 4 bedroom, 3 bath home with 2,318 square ft!

Clayton Oxford
Clayton Oxford from www.luvmyoxfordhome.com
It's that time of year that yields lots of new things for the home. Rate your music, big music site. Detailed double wide mobile home tour video.

Ultra pro big boy 29ult32764ah.

Rew provides the latest mls® listings and comprehensive property information to make finding your dream home easy. The 76 is a manufactured prefab home in the ultra pro series built by clayton built. See more ideas about clayton homes, modular homes, manufactured home. Mobilehometours #manufacturedhomes #claytonhomes hi diva family, i fell in love with this farmhouse home all over again!