36+ Floor Plans For Clayton Mobile Homes Images

.used home, mobile home financing, manufactured home financing, homes for sale, storage buildings, manufactured homes, utility trailers ( delta delta trailer sales a division of delta home center offers quality trailers of all styles.

36+ Floor Plans For Clayton Mobile Homes Images. We have double wide floor plans with 4 bedrooms, double wide floor plans with 5 bedrooms and more! Delivery and installation costs are not included unless otherwise stated.

Home Details Clayton Homes Of New Braunfels
Home Details Clayton Homes Of New Braunfels from api.claytonhomes.com
Current activity lists planning projects that will proceed to planning board and/or town council only. The floor plan of your home is important. Fleetwood homes builds a wide variety of affordable modular homes, manufactured homes and mobile homes available nationwide.

Floor plans & clearance manufactured homes.

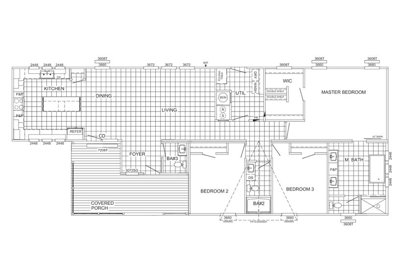
It has three bedrooms and two full baths. Need more reasons to consider a new mobile home? When you look for home plans on monster house plans, you have access to hundreds of house plans and layouts built for very exacting specs. Series heritage classic select legacy tiny ultimate tru multi section tru single section flex revolution x treme littlefoot constellation capital series national.